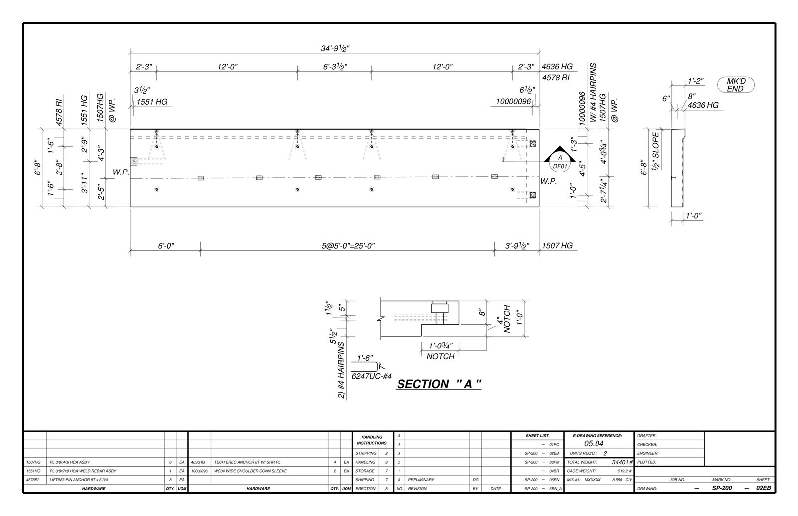
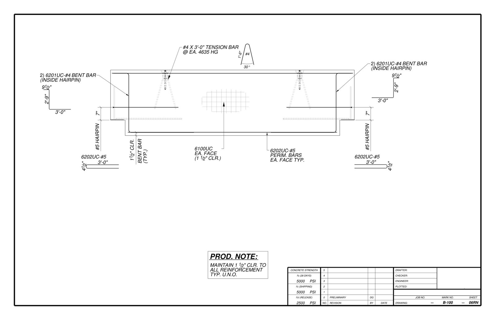
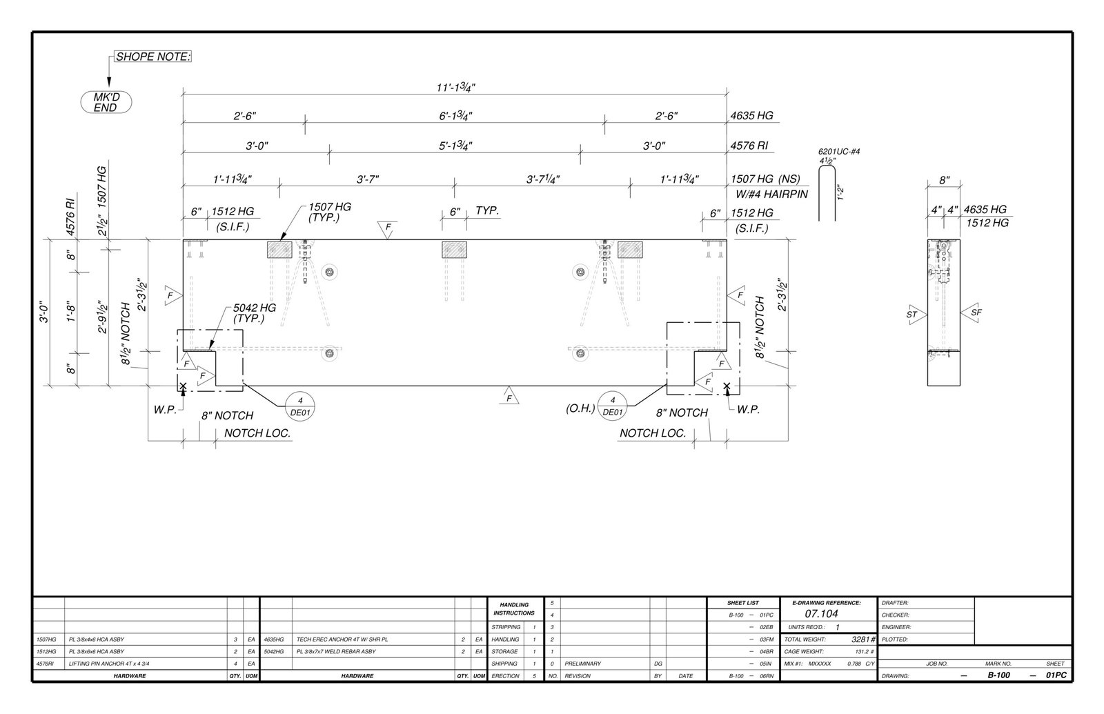
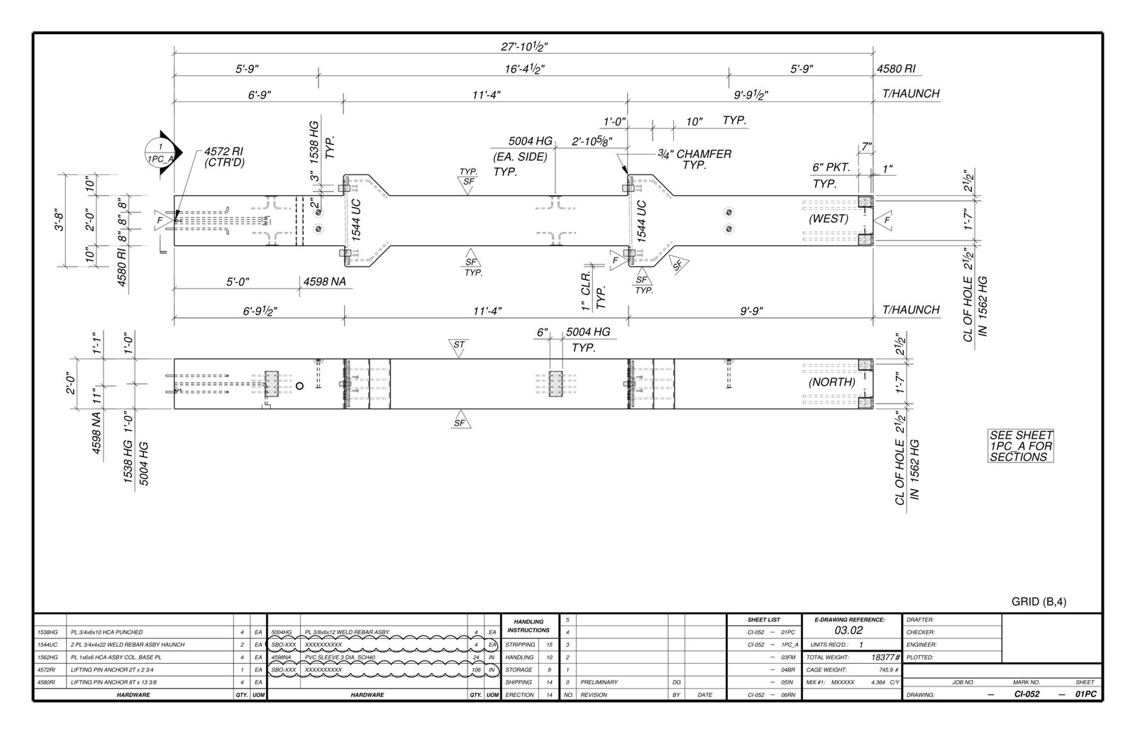
At Stru Core Engineering, we specialize in creating Precast Shop Drawings that streamline the construction process from concept to completion. Our services include element-specific detailing, reinforcement layouts, dimensional plans, fabrication guides, and assembly instructions all designed to meet your unique project needs.
Using advanced software like Revit and Tekla, we ensure each drawing is accurate, practical, and aligned with global precast standards. Whether it’s residential, commercial, industrial, or modular construction, our detailed shop drawings simplify production and on-site assembly, helping you build efficiently and effectively.

Every drawing is crafted with meticulous attention to detail to minimize errors.

Simplified designs ensure smoother production and assembly.

Tailored drawings to meet unique project needs and challenges.

We work closely with architects, engineers, and contractors to ensure alignment.

Our drawings adhere to international precast manufacturing standards.
With over two decades of experience, we understand that precision and clarity in shop drawings are critical for successful construction. Our detailed, easy-to-follow plans ensure that your project transitions seamlessly from the drawing board to reality.
With Stru Core Engineering, you gain a partner committed to helping your project succeed. Our precast shop drawings are designed to make every stage of construction easier, from planning and coordination to on-site assembly.




Your trusted partner for world-class precast detailing, structural design, and engineering solutions across the globe.